EN VENTA
|
| |
-
C E R R O D E L
H A D A
- |
|
| Población |
El Gastor |
Metros de parecla |
30.000 |
| Situación |
Campo |
Año Construcción |
2005 |
| Piscina |
Si |
Dimensiones Piscina |
8 x 5 |
| Electricidad |
Si - 220V |
Agua |
Si. Red |
| Acceso |
Carril |
Vallado |
Si |
| Construcción |
Gnral |
Depuradora |
Si. Autom. |
| Amueblada |
Si |
Madera |
Pino |
| Suelos |
Gres
Porcel. |
Techos |
Liso |
| Ventanas |
Aluminio |
Climalit |
Si |
| Aire Acondicionado |
Si |
Calefacción |
Si |
| Chimenea |
Si |
Distancia a pueblo |
4 Kms. |
| Energía Cocina |
Electricidad |
Calentador |
Electrico |
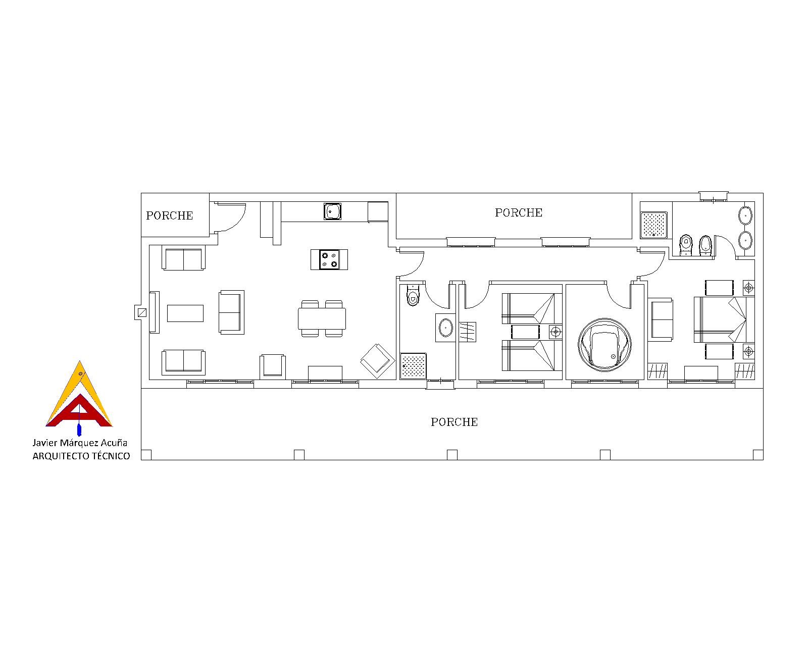
| Salón |
1
(30m2) |
Comedor |
1
(*) |
| Comedor |
- |
Zaguán |
1
(1) |
| Aseos |
- |
Porche |
1
(3m2) |
| Cuartos de Baño |
2 |
Dormitorio 1 |
12
m2 |
| Dormitorio
2 |
12
m2 |
Dormitorio
3 |
- |
| Dormitorio
4 |
- |
Dormitorio
5 |
- |
| Terraza 1 |
1
(30m2) |
Terraza 2 |
1 |
| Lavadero |
1 |
Jakuzzi |
1 |
| Total Planta 1 |
80 |
Total Planta 2 |
- |
| Total Planta 3 |
- |
Total Planta 4 |
- |
| Sotano |
1 |
Bodega |
- |
Mítico
nombre para una casa diferente a lo imaginado. El concepto de casa
rural toma otra forma al contemplarla. Diseño interior totalmente
minimalista, pero exteriormente mimetizado con el entorno. Esta
casa hace las delicias de aquellos que gustan el diseño y decoración
de vanguardia sin renunciar al sabor del entorno natural.
Enclavada a las faldas del impresionante tajo Algarín, con un corte
vertical de cuatrocientos metros de altura, viste a esta casa con
majestuosidad y grandeza. Desde su terraza principal un no menos
impresionante paisaje del pantano de Zahara-El Gastor así como de
toda la sierra de Grazalema. Esta casa es excepcional para
aquellos que buscan todo en uno. Dispone de Salón, comedor,
cocina integrada, dos baños, dos dormitorios, lavadero, trastero y
dos algibes para aguas. La piscina esta recintada con acceso a
traves de la terraza delantera de la casa con unas vistas
impresionantes. Cerro del Hada, una casa en la que se sentirá
encantado...
| |
5 |
10 |
15 |
20 |
25 |
30 |
35 |
40 |
45 |
50 |
MISCELANEA
|
|